DEL REY VISTA
APARTMENTS
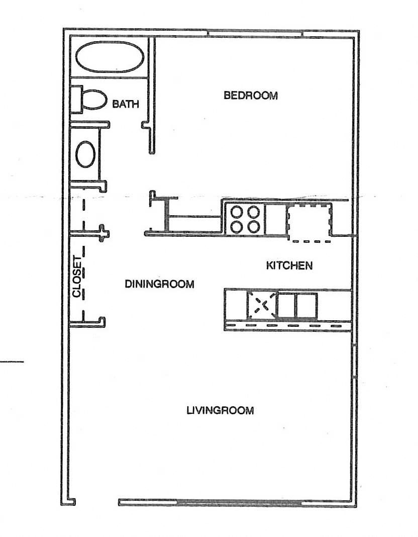
Bedrooms
STUDIO - 3 beds
baths
1 - 2 BATHS
DIMENSIONS
278 - 865 SQ FT.
Location,
Location,
Location.
Del Rey Vista is located halfway between the beaches of Playa del Rey and trendy downtown Culver City and minutes from Playa Vista, Marina del Rey, LAX, and the 405 and I-10 freeways. We are in our own cul-de-sac as our building borders Culver Blvd.’s Greenbelt making walking, jogging, biking along the trail as easy as stepping out your front door. Our unique location offers endless dining, entertainment, recreation and shopping options.
Community Amenities
- Pool
- Controlled Access/Gated Property
- Gated Covered Parking
- BBQ/Picnic Area
- Elevator
- Fitness Center
- Laundry Facilities
- On-Site Management
Apartment Amenities
- Updated kitchens
- Patio/Balcony
- Air conditioning
- Appliances
- Hardwood flooring
CONTACT
11519 Culver Blvd.
Los Angeles, CA 90066
(310) 390-3064






